QUIROPRÁCTICA AZUMENDI | ARQUITECTURA Y DISEÑO
DESCRIPCIÓN
En este post, mostraremos el cambio que realizamos a una vivienda, para convertirla en una consulta quiropráctica. Fernando Azumendi es un chico joven y profesional que tenía claro que quería hacer de su lugar de trabajo, un espacio donde los pacientes se sintiesen cómodos y relajados, casi como en casa.
SITUACIÓN
Quiropráctica Azumendi está ubicada en Calle …. en pleno centro histórico de Málaga capital.
A pesar de la gran afluencia de turistas y viandantes por las calles de esta zona, gracias a una buena elección de materiales y acabados, se ha conseguido convertir este lugar en casi un santuario del relax y el bienestar.
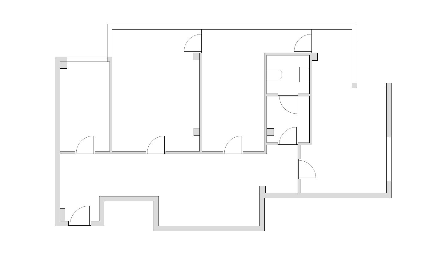
ESTADO PREVIO
Este es el estado previo a nuestra propuesta y posterior intervención en el local.
Nos encontramos con una distribución de espacios muy divididos y poco aprovechados, por lo que propusimos espacios mas abiertos para dar amplitud y aprovechar al máximo la luz natural.
VALORES DEL CLIENTE
Quiropráctica Azumendi tiene como objetivo primordial mejorar la salud de cada uno de los pacientes que acudan a la consulta, centrándose en el estudio y cuidado del sistema nervioso y columna vertebral.
Por ello tres de sus valores más importantes, y que fueron decisivos a la hora de pensar en el diseño de interior son:
_PROFESIONALIDAD: Fernando Azumendi, es un joven profesional y muy cualificado, que pone el 100% de sí mismo en cada paciente al que trata.
_SEGURIDAD: La quiropráctica es un método de tratamiento que suele ser poco conocido, y algo “temido” por los pacientes, por lo que una de las cualidades fundamentales que debíamos transmitir era seguridad y confianza.
_CALMA: a mención de lo anterior, es imprescindible, el estado de calma del paciente para un mejor resultado y una rápida y mejor recuperación.
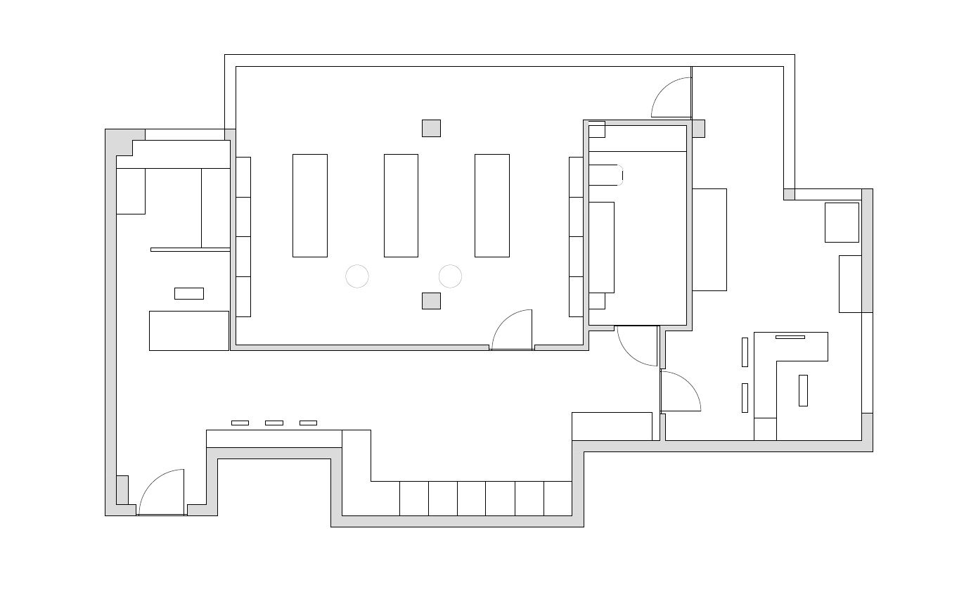
ESTADO REFORMADO
Tras estudiar las necesidades del cliente y tener en cuenta todos los factores mencionados en los anteriores puntos, llegamos a la definición completa de la propuesta:
A la entrada nos encontramos con el recibidor/mostrador, diseñado a medida para este espacio. La madera junto al color blanco mas el uso de una iluminación muy controlada son los dos elementos destacables y los pilares en torno a los que se construye el diseño.
Como elemento distintivo, identificativo y decorativo, creamos un mural compuesto por esculturas de madera, talladas manualmente por un artesano, las cuales se corresponden con diferentes deformaciones de la columna. Esta composición de madera conecta con el paciente de forma inmediata ayudándole a relajarse..
A continuación nos encontramos con la sala de espera, un espacio diáfano en el que los tonos neutros y materiales lisos son de nuevo los protagonistas. El poco mobiliario que se ha usado en este proyecto, no pasa desapercibido y se ha escogido prestando especial atención a los detalles. El claro ejemplo de esto, son las sillas que rompen con la rectitud de todas las líneas del espacio, e invitan al paciente a sentarse y esperar a ser atendido. A este espacio, se han sumado elementos como plantas, ilustraciones, una mesa baja y una pantalla de tv, que hacen que los clientes se sientan como en casa.
Para la sala de tratamiento, hemos querido continuar con la linealidad y limpieza en colores y formas, añadiéndo sutiles toques de iluminación indirecta, en este caso detrás de los armarios, consiguiendo así, que se conviertan en un elemento casi decorativo y crear en el espacio un ambiente calmado.
El color de las camillas, aunque en un principio pueda pasar desapercibido, fue una decisión muy importante, ya que la mayoria de materiales de estas características, tienen colores llamativos, que dirigen toda tu atención a ellos, sin embargo en este caso, el haber elegido un tono neutro, hace que se convierta en un elemento mas de todo el espacio y nos olvidemos de dónde estamos.
Por último, en el despacho se abrieron dos grandes ventanales para aprovechar al máximo la luz natural. Gracias a su forma en L, se han creado dos zonas una de trabajo y atención al paciente y otra con una camilla.
La mesa de trabajo, se hizo a medida, como todos los muebles que hay en la clínica, creando asi un espacio homogéneo, relajado y con sutiles contrastes.













Comentarios recientes